chalk street estate agents

Belmont Avenue, Upminster, RM14

£1,800 pcm
Let AgreedBungalow
2
1
1
Property Features
  • Two Spacious Double Bedrooms
  • Semi-Detached Bungalow
  • Well Presented Throughout
  • Kitchen / Dining Room
  • Stylish Family Bathroom
  • Well Maintained Rear Garden
  • Low Maintenance Front Garden
  • 0.7 Miles From Upminster Station
  • Quiet Residential Road
  • Close To Shops, Amenities & Sought-After Schools

About This Property

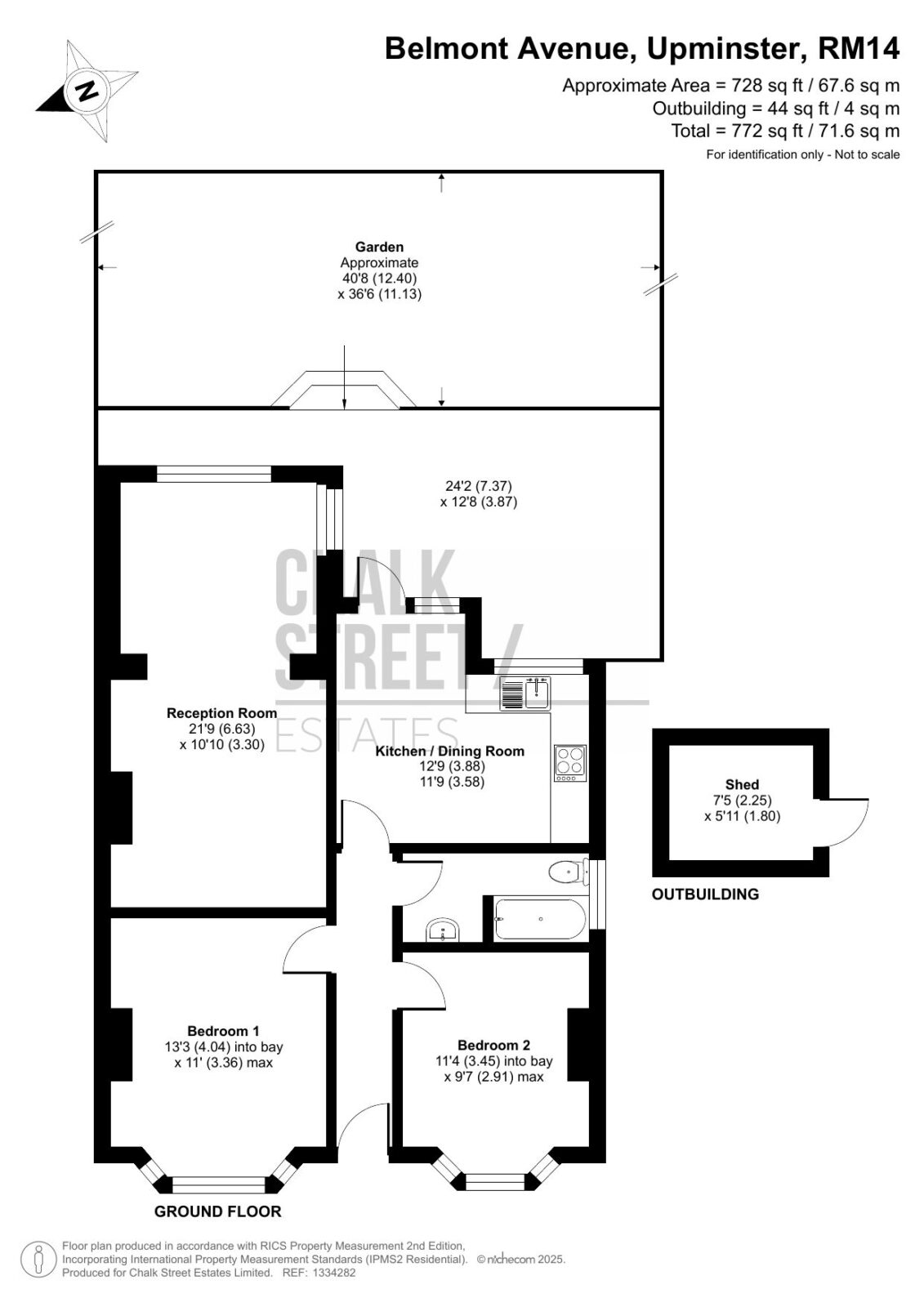
Positioned in a sought-after location within easy reach of Upminster town centre and station, this spacious two bedroom semi-detached bungalow offers well-presented interiors, generous living space, and a substantial rear garden.

The internal layout comprises a bright front reception room with bay window, a sizeable kitchen/dining room opening directly onto the garden, and two well-proportioned double bedrooms – the larger of which measures over 21 ft in length. A modern family bathroom completes the internal accommodation.

Externally, the property boasts a private rear garden measuring approximately 40’8 by 36’6, complete with a patio area, lawn, and a useful outbuilding/shed.

Located just 0.7 miles from Upminster station, the property enjoys excellent transport links and is within close proximity to local shops, amenities, and schools.

 

Holding Deposit: £415.38 
Security Deposit: £2,076.92

 

In compliance with The Money Laundering Regulations 2017, we are legally obligated to verify the identity of all prospective tenants. This process requires the review of valid photographic identification and an official proof of address. 
Should your offer on a property marketed by Chalk Street Estates be accepted, you will be required to complete identity verification through our secure third-party provider, Blinc UK. A non-refundable fee of £15 per tenant is payable in advance of the verification checks. This payment is separate to the holding deposit.
Please note that a tenancy cannot be formally agreed until all parties have provided valid identification and the verification process has been successfully completed.

Call our Havering Office on 01708 961000 for more information or to arrange a viewing.