chalk street estate agents

Burnway, Hornchurch, RM11

Offers Over £475,000
Sold STCTerraced House
3
1
1
Property Features
  • No Onward Chain
  • Three Bedrooms
  • Terraced House
  • Spacious Through Lounge
  • Conservatory
  • Bathroom With Separate W/C
  • Off Street Parking
  • 65' Rear Garden
  • Detached Garage To Rear
  • 0.2 Miles from Emerson Park Station

About This Property

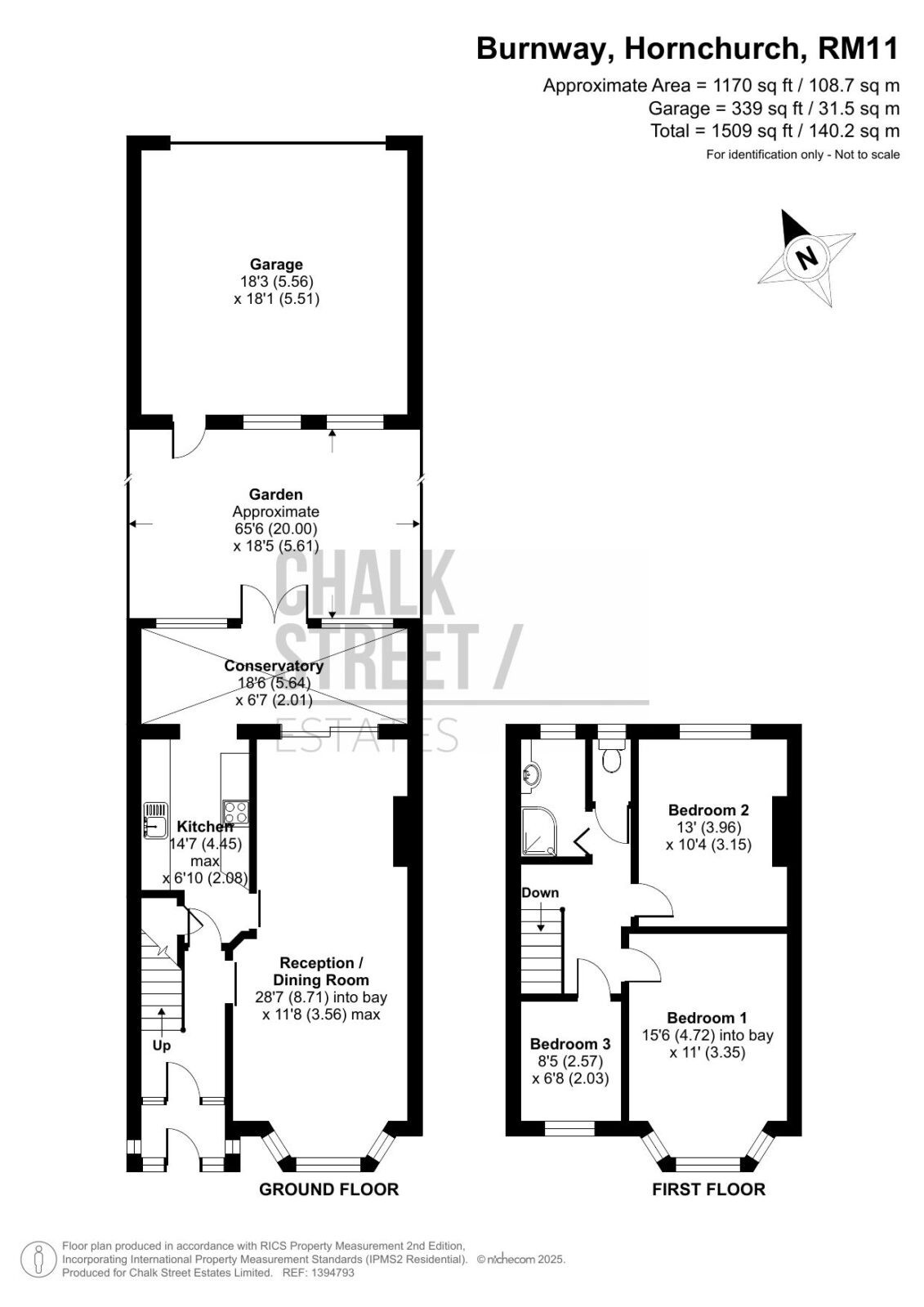
Offered for sale with the added advantage of no onward chain, situated within close proximity of both Emerson Park and Upminster Bridge stations, is this spacious three bedroom terraced house. 

Upon entering the property, via the enclosed porch, you are greeted with an entrance hallway with stairs rising to the first floor.

Drawing light from a walk-in bay window to the front elevation is the well-proportioned through lounge. To the rear of the room is the dining area, that enjoys a centre fireplace and has sliding doors opening onto the conservatory.

The separate kitchen comprises above and below counter storage units, worktop space extending along two sides and various integrated appliances.

Spanning the rear of the home is the conservatory which overlooks the rear garden.

Heading up to the first floor, there are two large double bedrooms and a further single. The master bedroom measures 15'6 x 11 and enjoys a beautiful bay window. 

Completing the internal layout is the family bathroom and separate W/C.

Externally, to the front there is off street parking via the driveway.

The 65' rear garden is laid primarily to lawn. At the foot of the garden is a large garage which measures 18'3 x 18'1 and can be accessed via the private road to the rear.

Viewing is highly recommended to fully appreciate all this wonderful home has to offer.

 

 

In compliance with the Money Laundering Regulations 2017, we are legally obligated to verify the identity of all prospective purchasers. This process requires the review of valid photographic identification and an official proof of address.
Should your offer on a property marketed by Chalk Street Estates be accepted, you will be required to complete identity verification through our secure third-party provider, Blinc UK. A non-refundable fee of £15 per purchaser is payable in advance of the verification checks.
Please note that a sale cannot be formally agreed, and a memorandum of sale cannot be issued, until all parties have provided valid identification and the verification process has been successfully completed.

 

 

Call our Havering Office on 01708 922837 for more information or to arrange a viewing.
Mortgage Calculator
Stamp Duty Calculator
Rental Yield Calculator