chalk street estate agents

Essex Road, Romford, RM7

£500,000
Under OfferTerraced House
3
1
1
Property Features
  • Three Bedrooms
  • Terraced House
  • Extended To The Rear
  • Open Plan Kitchen / Dining Room
  • 23' Through-Lounge
  • 29' x 16' Detached Garage With Rear Access Via Private / Gated Road
  • 129' Rear Garden
  • Off Street Parking
  • Good Transport Links
  • Close Proximity To Local Amenities

About This Property

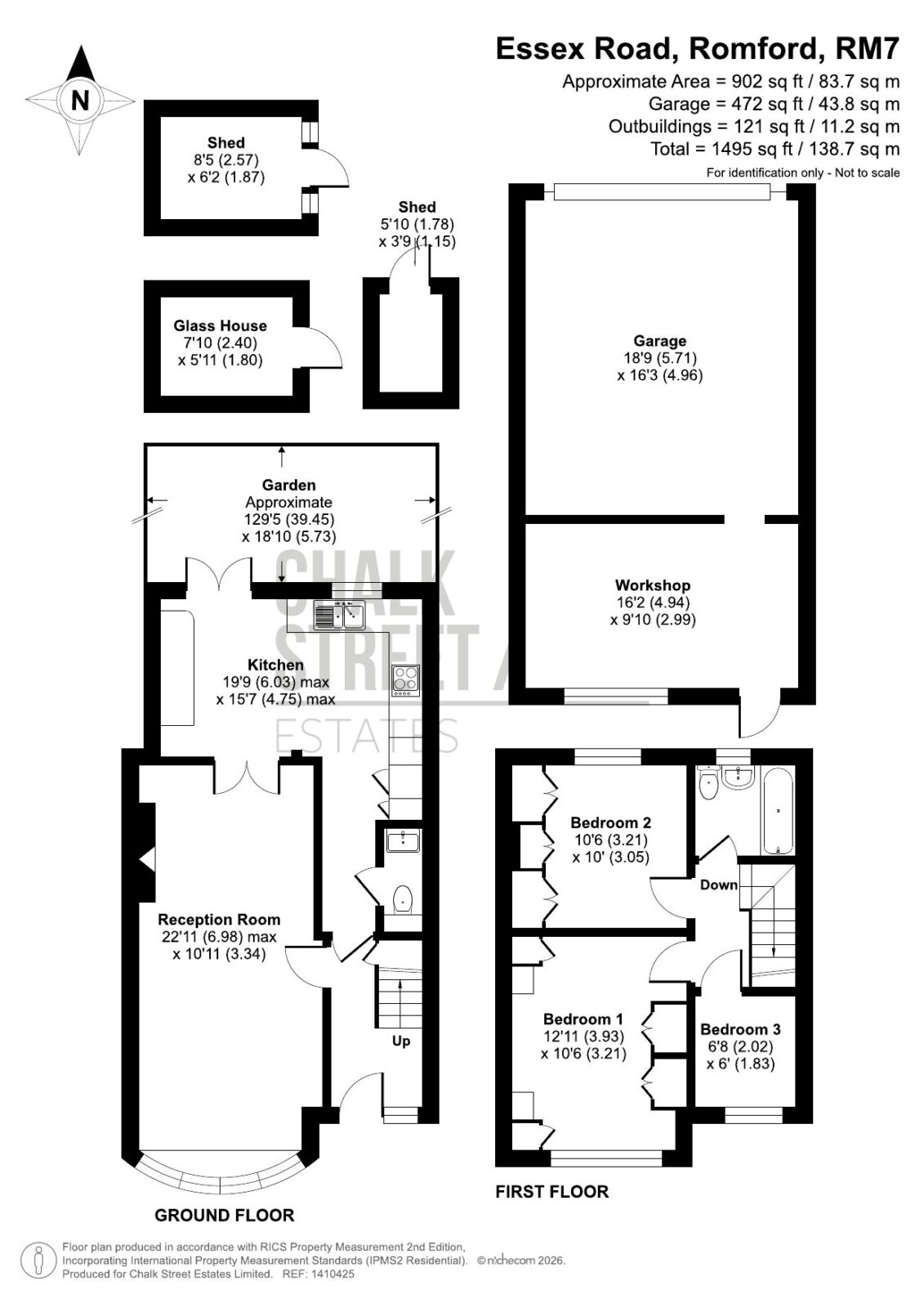
Situated in the sought after Mawneys location, within close proximity of local schools and great transport links, is this three bedroom, extended terraced house. 

The home commences with an entrance hallway proving access to all the ground floor living areas and stairs rising to the first floor. 

Drawing an abundance of natural light from the bay window to the front elevation, the reception room measures 22’11 x 10'11. Decorated with a neutral palette, further features include decorative cornice and a feature fireplace. 

French doors open onto the kitchen / dining room which is situated within the rear extension. The L-shaped room offers space for a table and chairs with the kitchen comprising numerous wall and base units, ample worktop space and room for essential appliances. There are patio doors leading out to the rear garden. 

To finish of the ground floor footprint, there is a handy W/C.

Heading upstairs, there are two double bedrooms, both enjoying fitted wardrobes, and a further single bedroom which is currently arranged as a home office. 

Completing the internal layout is the modern family bathroom. 

Externally, there is off street parking to the front via a brick paved driveway.

The home boasts an impressive 129’ rear garden, commencing with large patio area, with the remainder mostly laid to lawn and houses two garden sheds. At the base of the garden is a large detached store / garage, with electric shutters and lighting, which is accessed via a secure, gated private access road at the rear.

Viewing is highly recommended to appreciate what this home has to offer.

 

In compliance with the Money Laundering Regulations 2017, we are legally obligated to verify the identity of all prospective purchasers. This process requires the review of valid photographic identification and an official proof of address.
Should your offer on a property marketed by Chalk Street Estates be accepted, you will be required to complete identity verification through our secure third-party provider, Blinc UK. A non-refundable fee of £15 per purchaser is payable in advance of the verification checks.
Please note that a sale cannot be formally agreed, and a memorandum of sale cannot be issued, until all parties have provided valid identification and the verification process has been successfully completed.

Call our Havering Office on 01708 922837 for more information or to arrange a viewing.
Mortgage Calculator
Stamp Duty Calculator
Rental Yield Calculator