chalk street estate agents

Ferguson Avenue, Gidea Park, RM2

Offers Over £500,000
Under OfferBungalow
3
1
1
Property Features
  • 0.7 Miles From Gidea Park Elizabeth Line Station
  • 0.5 Miles From Ofsted Outstanding Ardleigh Green Schools
  • 94' Rear Garden
  • Garage
  • Shared Driveway
  • Conservatory
  • Two Reception Rooms
  • Semi-Detached Bungalow
  • Three Bedrooms
  • No Onward Chain

About This Property

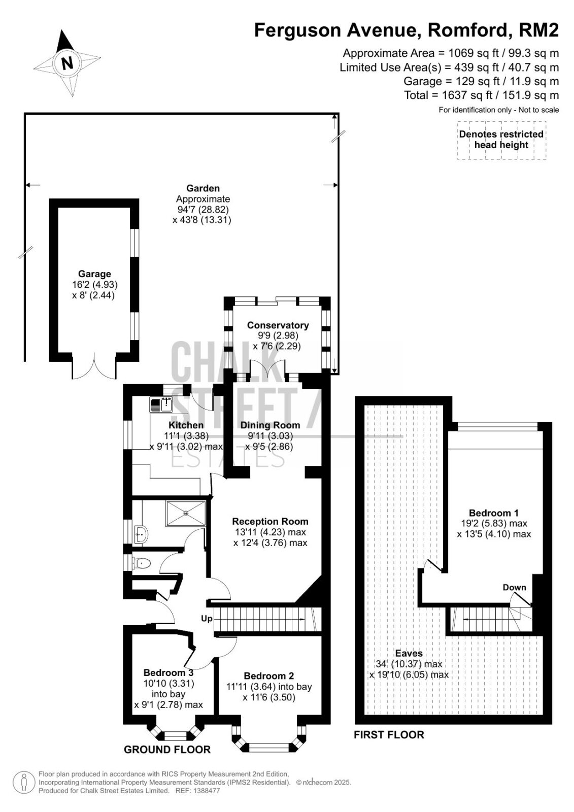
Offered for sale with the added advantage of no onward chain, ideally positioned within close proximity of Gidea Park Elizabeth Line Station, is this thee bedroom semi-detached bungalow.

Upon entering the home, you are greeted with a welcoming hallway with stairs rising to the first floor.

Drawing light from their respective bay windows, positioned at the front of the home, are bedrooms two and three.

At the heart of the home is the spacious reception room which measures 13’11 x 12’4 and flows seamlessly through to the dining room.

From here double doors open onto the conservatory overlooking the impressive rear garden.

The separate kitchen is located at the rear of the home and also overlooks the rear.

Rounding off the ground floor footprint is the family bathroom and separate W/C.

The loft has been converted to provide a large master bedroom which boasts an abundance of eaves storage.

Externally, to the front there is a well maintained front garden and a shared driveway which leads to the side access and garage (16’2 x 8’).

The rear garden measures an impressive 94’ and is predominately laid to lawn.

Viewing is highly recommended to fully appreciate all this wonderful home has to offer.

 

 

In compliance with The Money Laundering Regulations 2017, we are legally obligated to verify the identity of all prospective purchasers. This process requires the review of valid photographic identification and an official proof of address. 
Should your offer on a property marketed by Chalk Street Estates be accepted, you will be required to complete identity verification through our secure third-party provider, Blinc UK. A non-refundable fee of £15 per purchaser is payable in advance of the verification checks.
Please note that a sale cannot be formally agreed, and a memorandum of sale cannot be issued, until all parties have provided valid identification and the verification process has been successfully completed.

Call our Havering Office on 01708 922837 for more information or to arrange a viewing.
Mortgage Calculator
Stamp Duty Calculator
Rental Yield Calculator