chalk street estate agents

New Zealand Way, Rainham, RM13

£475,000
Sold STCEnd of Terrace House
3
2
2
Property Features
  • No Onward Chain
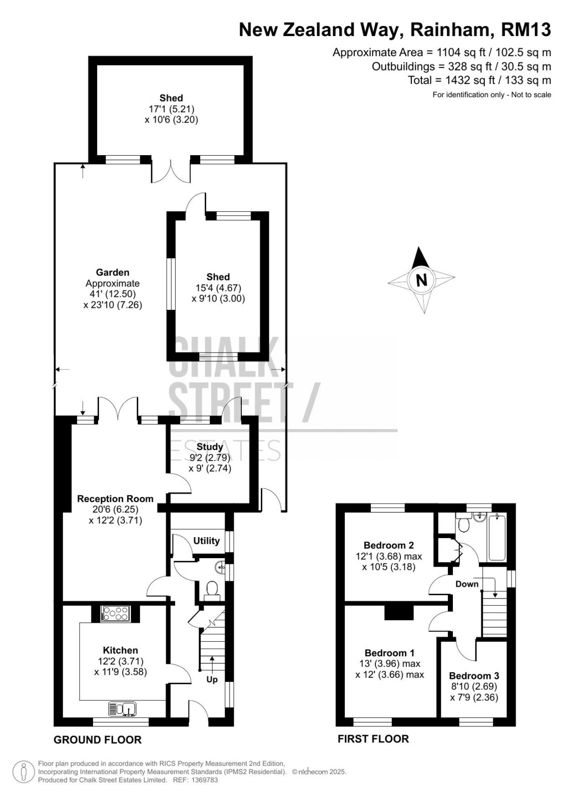
  • Three Bedroom End of Terrace House
  • Large Open Plan Reception / Diner
  • Separate Kitchen
  • Ground Floor W/C
  • Utility Room
  • Off Street Parking
  • Side Gate Access
  • 41' Rear Garden
  • Two Large Outbuildings

About This Property

Offered for sale with the added advantage of no onward chain, ideally located within close proximity to the A13 and walking distance to local schools and amenities, is this well presented, three bedroom end of terrace house.

Upon entering the home, via the enclosed porch, you are greeted with a welcoming hallway with stairs rising to the first floor.

Positioned at the front of the home is the kitchen which comprises worktops to three sides, a range of above and below units and space for essential appliances.

Further into the home is the separate utility room.

At the rear of the home, the through-lounge draws light from the French patio doors which overlook the rear garden. Accessed off such is the study which measures 9’2 x 9’, creating the perfect space for a home office, playroom or separate dining space.

Completing the ground floor footprint is a handy W/C.

Heading upstairs there are three bedrooms comprising two large double bedrooms and a large single bedroom.

Finishing the internal layout is the family bathroom.

Externally, there is off street parking to the front of the home as well as side gate access. 

The 41’ rear garden is laid mostly paved and houses two large outbuildings, providing ideal storage.

Viewing is highly recommended to fully appreciate all this wonderful home has to offer.

 

In compliance with the Money Laundering Regulations 2017, we are legally obligated to verify the identity of all prospective purchasers. This process requires the review of valid photographic identification and an official proof of address.
Should your offer on a property marketed by Chalk Street Estates be accepted, you will be required to complete identity verification through our secure third-party provider, Blinc UK. A non-refundable fee of £15 per purchaser is payable in advance of the verification checks.
Please note that a sale cannot be formally agreed, and a memorandum of sale cannot be issued, until all parties have provided valid identification and the verification process has been successfully completed.

Call our Havering Office on 01708 922837 for more information or to arrange a viewing.
Mortgage Calculator
Stamp Duty Calculator
Rental Yield Calculator