chalk street estate agents

Rainham Road, Rainham, RM13

Offers Over £530,000
For SaleSemi-Detached House
3
1
3
Property Features
  • Off Street Parking
  • Rear Access
  • Single Side Extension
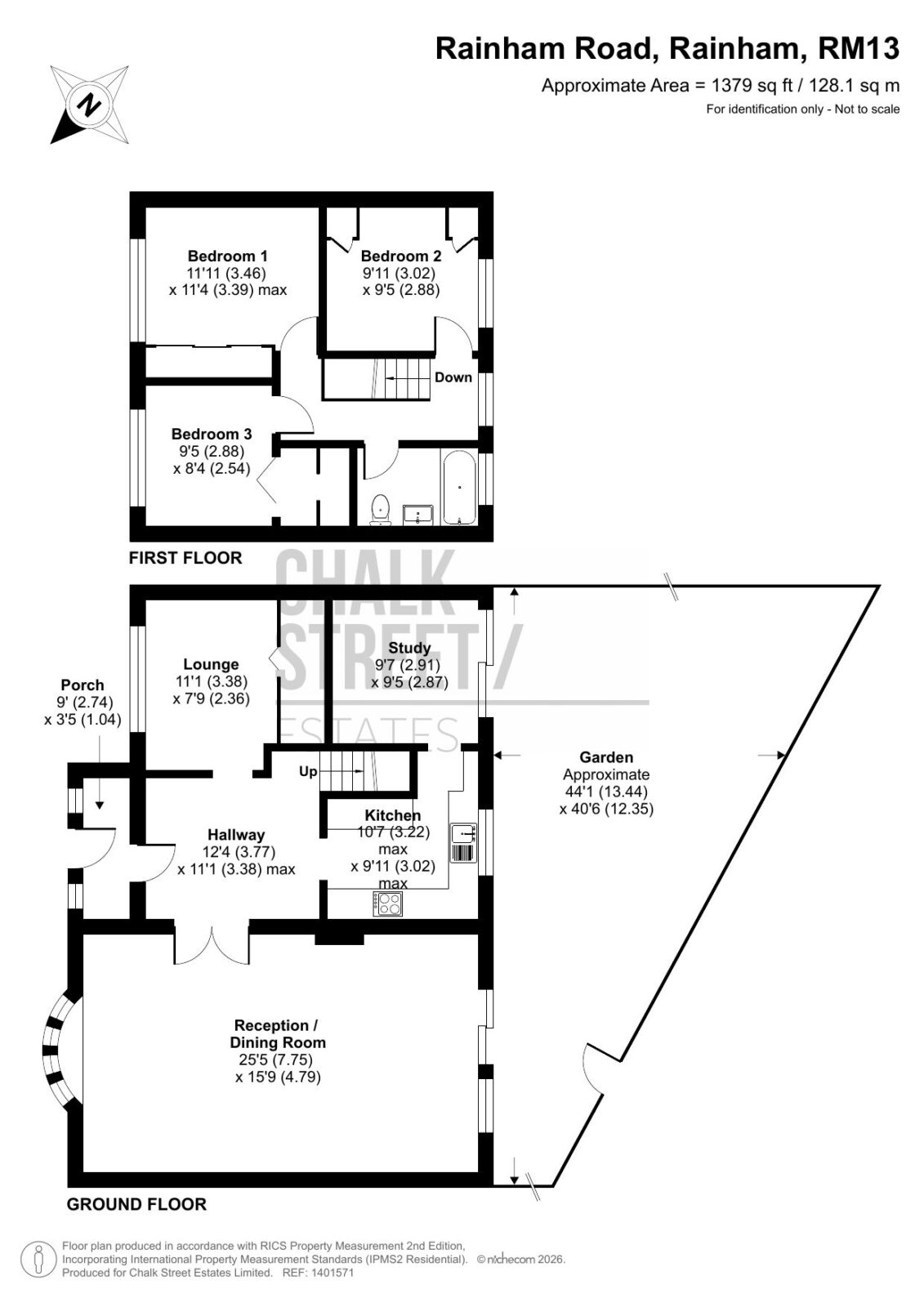
  • 1,379 Sq. Ft. of Living Accommodation
  • Three Reception Rooms
  • Semi-Detached House
  • Three Bedrooms
  • 44' South-West Facing Rear Garden
  • 0.9 Miles From Rainham Station
  • Close Proximity To Shops, Schools and Transport Links

About This Property

Amassing over 1,300 square feet, this spacious three-bedroom semi-detached house offers comfortable family living, conveniently located just 0.9 miles from Rainham Station.

Upon entering through the enclosed entrance porch, you are welcomed into a grand entrance hallway with stairs rising to the first floor, setting an inviting tone for the home. 

The single side extension now houses a large through lounge, measuring an impressive 25'5 x 15'9. This bright and airy room is flooded with natural light, thanks to a beautiful bay window to the front and sliding patio doors to the rear, which provide seamless access to the garden. In addition to this superb lounge, the property boasts two other distinct reception rooms, offering versatile living options perfect for dining, a dedicated home office, or a cosy snug.

The ground floor effortlessly flows, creating an ideal environment for both everyday life and entertaining. Each reception area benefits from ample natural light and flexible arrangements to suit various needs. The kitchen is well-appointed, featuring ample worktop space for meal preparation, various wall and base units and integrated appliances such as washing machine, fridge and freezer.

Upstairs, you will find three well-proportioned bedrooms. Bedrooms 1 and 2 benefit from fitted wardrobes, offering practical storage solutions, while bedroom 3 boasts a walk-in wardrobe, enhancing the storage capabilities. Rounding off the internal layout is the family bathroom.

The loft is conveniently boarded, offering additional storage space.

Externally, the property benefits from off-street parking to the front, adding to its practicality. The attractive 44-foot south-west facing rear garden is a delightful outdoor space, perfect for enjoying sunny afternoons and outdoor activities, with the valuable feature of independent rear access.

Situated in close proximity to local shops, schools, and transport links, this home combines spacious interiors with a highly convenient location, offering an excellent lifestyle opportunity. We encourage an early viewing to fully appreciate the potential and charm this property offers.

 

In compliance with The Money Laundering Regulations 2017, we are legally obligated to verify the identity of all prospective purchasers. This process requires the review of valid photographic identification and an official proof of address. 
Should your offer on a property marketed by Chalk Street Estates be accepted, you will be required to complete identity verification through our secure third-party provider, Blinc UK. A non-refundable fee of £15 per purchaser is payable in advance of the verification checks.
Please note that a sale cannot be formally agreed, and a memorandum of sale cannot be issued, until all parties have provided valid identification and the verification process has been successfully completed.

Call our Havering Office on 01708 922837 for more information or to arrange a viewing.
Mortgage Calculator
Stamp Duty Calculator
Rental Yield Calculator