chalk street estate agents

Slewins Lane, Hornchurch, RM11

Guide Price £600,000
For SaleSemi-Detached House
3
1
2
Property Features
  • Three Bedrooms
  • Semi-Detached House
  • Spacious Reception Room
  • Open Plan Kitchen / Dining Room
  • Separate Utility Room
  • Ground Floor W/C
  • Off Street Parking
  • 52' South Facing Rear Garden
  • Powered Outbuilding
  • 0.5 Miles From Gidea Park Eizabeth Line Station

About This Property

***GUIDE PRICE £600,000 - £625,000***

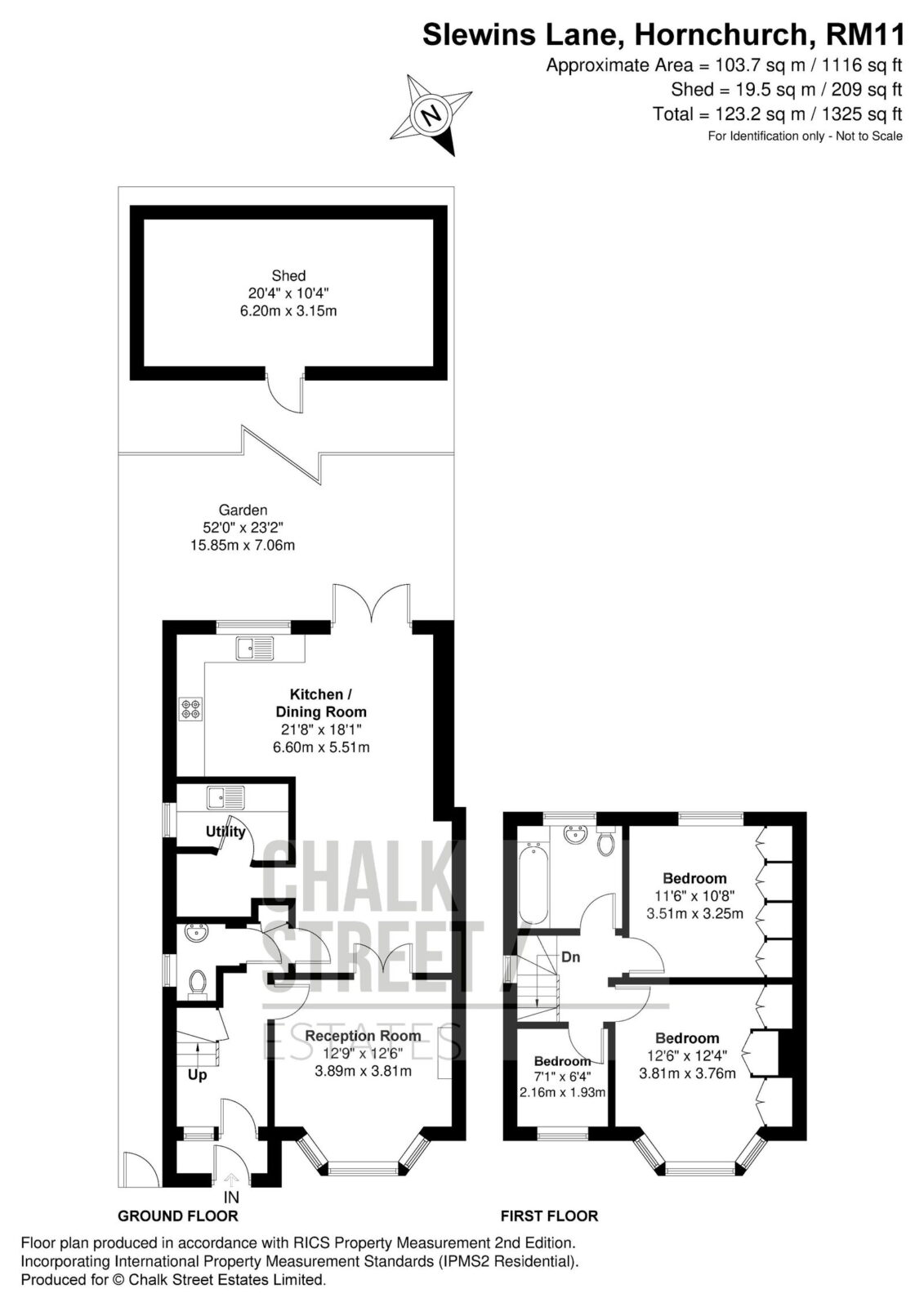
Suitably situated within 0.5 miles from Gidea Park Elizabeth Line station, within easy access to Emerson Park Station and close proximity to to Ofsted 'Outstanding Rated' Towers Infant School and Emerson Park Academy, is this extended, three bedroom semi-detached house, offering bright and practical accommodation extending to approximately 1,116 sq ft, with the added benefit of a powered outbuilding.

Upon entering the home, via the enclosed porch, you are greeted with a welcoming hallway with stairs rising to the first floor.

To the front of the property, the reception room features a bay window and offers a comfortable and well-proportioned living area. 

The impressive open-plan kitchen / family /dining room measuring 21’8” x 18’1”, creates a generous and sociable living space ideal for both everyday family life and entertaining. The kitchen is fitted with quartz worktops and includes a Bosch integrated dishwasher. Double doors open directly onto the rear garden, allowing for a seamless connection between internal and external space.

A separate utility room provides additional storage and laundry space.

The ground floor W/C further enhances the practicality of the layout and completes the footprint.

To the first floor there are three bedrooms, comprising two good sized doubles which both boast fitted wardrobes and a well proportioned single room, currently arranged as a home office. These are served by a family bathroom positioned off the landing.

The loft is insulated, providing improved energy efficiency, though it is not boarded.

Externally, to the front there is off street parking via the driveway and side gate access to the rear.

The south facing rear garden extends to approximately 52’, offering a substantial outdoor space with scope for landscaping or further enhancement. To the rear sits a large shed measuring 20’4” x 10’4”, complete with power and lighting, currently used for storage and offering excellent versatility for workshop or hobby use.

The property benefits from gas central heating and is offered with light fittings included within the sale. Presented in good order throughout, this is a well-balanced family home in a popular residential location, convenient for local amenities, reputable schools and transport links.

 

In compliance with The Money Laundering Regulations 2017, we are legally obligated to verify the identity of all prospective purchasers. This process requires the review of valid photographic identification and an official proof of address. 
Should your offer on a property marketed by Chalk Street Estates be accepted, you will be required to complete identity verification through our secure third-party provider, Blinc UK. A non-refundable fee of £15 per purchaser is payable in advance of the verification checks.
Please note that a sale cannot be formally agreed, and a memorandum of sale cannot be issued, until all parties have provided valid identification and the verification process has been successfully completed.

Call our Havering Office on 01708 922837 for more information or to arrange a viewing.
Mortgage Calculator
Stamp Duty Calculator
Rental Yield Calculator