chalk street estate agents

Station Lane, Hornchurch, RM12

Offers Over £700,000
For SaleDetached House
3
1
2
Property Features
  • Three Bedrooms
  • Detached House
  • 2 Reception Rooms
  • Seperate Utility Room
  • Downstairs W/C
  • Family Bathroom
  • Detached Garage
  • Off Street Parking
  • 0.2 Miles to Hornchurch Station
  • 0.3 Miles to Hornchurch Town Centre

About This Property

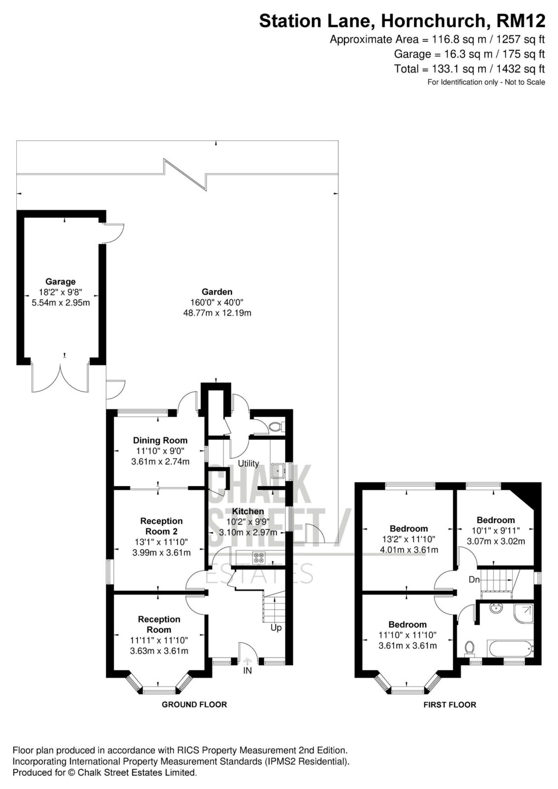
Positioned just 0.2 miles from Hornchurch Station and a short stroll to the vibrant town centre, this well-presented three-bedroom detached house offers both space and superb connectivity.

The internal accommodation begins with a grand entrance hallway, providing a welcoming introduction to the home and access to the principal ground floor rooms, with a staircase gracefully rising to the first floor.

To the front, the main reception room is a bright and inviting space, enjoying an impressive bay window that fills the room with natural light. This room features an attractive fireplace, set against neutral décor and finished with plush carpet underfoot. This room, alongside the second reception room, offers an exciting opportunity for a buyer to infuse their personal style through modernisation.

Adjacent to this, the second reception room is equally well-proportioned, offering versatile space perfect for an additional living area or a formal dining room. Bi-fold doors from here open into a conservatory, which, whilst functional, presents a wonderful canvas for modernisation, allowing for a buyer to create a bespoke space for relaxation and enjoyment overlooking the impressive rear garden.

The separate kitchen is thoughtfully fitted with a comprehensive range of wall and base units, providing ample worktop space and provisions for essential appliances. This space is ideal for a buyer looking to undertake a refit, creating a contemporary kitchen perfectly suited to their tastes. The layout flows seamlessly into the adjoining utility room, which offers additional storage and appliance space. A convenient ground floor W/C is located off the utility room, which also provides direct access to the rear garden.

Moving upstairs, the landing leads to three comfortable bedrooms. Two are generously sized double bedrooms, with the principal bedroom enjoying a charming bay window that enhances its airy feel. The third bedroom, located to the rear, offers a comfortable single space.

Completing the internal layout is a newly fitted and stylish four-piece family bathroom.

Externally, the property boasts excellent outdoor provisions. To the front, a driveway provides off-street parking and access to a detached garage, along with side access leading to the rear garden.

The substantial 160' rear garden is a truly remarkable space. It commences with a patio area, perfect for outdoor dining and entertaining, whilst the remainder is predominantly laid to lawn, beautifully adorned with a variety of planting and shrubbery.

With its spacious layout, convenient access to transport links, and proximity to local amenities, viewing is highly recommended to fully appreciate all the benefits this home has to offer and to envisage the exciting potential for personalisation.

 
In compliance with The Money Laundering Regulations 2017, we are legally obligated to verify the identity of all prospective purchasers. This process requires the review of valid photographic identification and an official proof of address. 
Should your offer on a property marketed by Chalk Street Estates be accepted, you will be required to complete identity verification through our secure third-party provider, Blinc UK. A non-refundable fee of £15 per purchaser is payable in advance of the verification checks.
Please note that a sale cannot be formally agreed, and a memorandum of sale cannot be issued, until all parties have provided valid identification and the verification process has been successfully completed.

Call our Havering Office on 01708 922837 for more information or to arrange a viewing.
Mortgage Calculator
Stamp Duty Calculator
Rental Yield Calculator