chalk street estate agents

Wayside Avenue, Hornchurch, RM12

Offers Over £700,000
Sold STCSemi-Detached House
4
2
3
Property Features
  • Four Bedroom Semi-Detached House
  • Well Presented Throughout
  • Extended To Side & Rear
  • Two Spacious Reception Rooms
  • Third Reception Room with option to use as a 5th Bedroom
  • Open Plan Kitchen / Breakfast Room
  • Off Street Parking
  • 93' Unoverlooked Rear Garden
  • 0.3 Miles From Hornchurch Underground Station
  • Walking Distance To Hornchurch Town Centre

About This Property

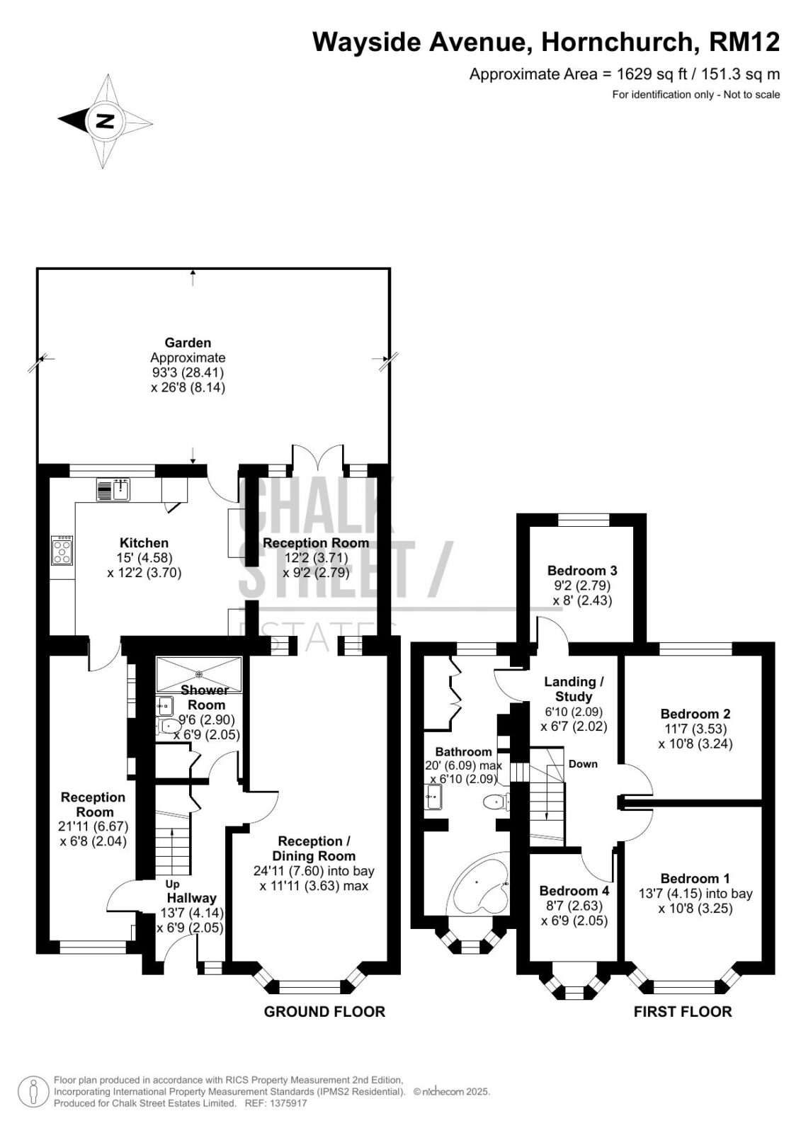
Suitably situated in a quiet residential cul-de-sac, within close proximity of the Hornchurch Underground Station and town centre, is this impressively extended and beautifully presented four-bedroom semi-detached family home.

The property boasts a wealth of features including a spacious reception room, a modern open-plan kitchen/breakfast room, a separate dining room, a versatile study/bedroom, and a contemporary shower room to the ground floor. The first floor is home to four well-proportioned bedrooms and a generous family bathroom. Adding to the home's modern appeal is the Hive smart system, providing efficient app-controlled heating and hot water.

Externally, the home offers a charming, cobbled driveway, and special curved brickwork columns, providing ample off-street parking. The private, 93’ rear garden is a particular highlight, offering a secluded oasis.

Upon entering, you are greeted by a spacious entrance hallway, which sets the tone for the home with its beautiful herringbone wood floor and elegant border. The stairs rise to the first floor from this welcoming and stylish space.

Positioned at the front of the home and measuring an impressive 25’ x 11’11, the spacious living room is flooded with natural light from an attractive, large bay window. Nicely presented, the room enjoys deep skirtings and decorative cornice.

Leading off from here is the dining room, finished in neutral tones. French patio doors provide a seamless connection to the rear garden, perfect for indoor-outdoor living.

A beautiful, exposed brickwork opening leads through to the large kitchen / breakfast room. This well-appointed space features numerous wall and base units, ample granite worktops, and integrated appliances including an Indesit dishwasher, Neff double oven / microwave, and Neff hob. A single door provides external access.

The garage has been thoughtfully converted to create a versatile third reception room (21’11 x 6’8), ideal for use as a home office, snug, playroom, or fifth bedroom.

Completing the ground floor is a stunning, modern shower room, featuring a double-width, walk-in shower, WC, and vanity unit.

Upstairs, you will find three generously proportioned double bedrooms and a comfortable single room. The master bedroom (13’7 x 10’8) benefits from a large bay window to the front. The landing also provides a useful study area measuring 6'11 x 6'8.

Rounding off the accommodation is the large and lovely family bathroom, which spans the width of the home, ensuring a bright and spacious feel.

To the front, the property makes a striking first impression with its cobbled driveway, which features a lovely circular pattern and is elegantly bordered by low, sweeping brick walls with curved columns.

The property enjoys an un-overlooked, 93’ rear garden. Commencing with a large patio area ideal for entertaining, the remainder is laid principally to lawn with established planting and shrubbery. A further patio area at the foot of the garden houses a handy shed.

Viewing is highly recommended to fully appreciate the size, condition, and charm of this wonderful family home.

 

 

Call our Havering Office on 01708 922837 for more information or to arrange a viewing.
Mortgage Calculator
Stamp Duty Calculator
Rental Yield Calculator